Últimas noticias
El Ayuntamiento impulsa trabajos de mejora en el Polígono Industrial "el Bolar"
13 Nov 2025 a las 16:24
El Ayuntamiento de Quinto ha sacado a licitación unos trabajos de mejora del Polígono Industrial El Bolar, valorados en algo más de 16.000€ para los que se cuenta además, con el apoyo económico de la Diputación Provincial de Zaragoza, que aportará un total de 6.600€.
Estos trabajos tienen por objeto mejorar las condiciones de seguridad y de mantenimiento del polígono. Se va a acometer la mejora de una zona afectada del pavimento, la reparación de farolas dañadas, la instalación de abrazaderas para sujetar contenedores de residuos, instalación de señales, pintar marcas viales de seguridad e instalación de un cartel identificativo del polígono.
Estos trabajos son complementarios a los ya iniciados para trasladar el transformador de energía de forma que se pueda prolongar una de las calles de forma totalmente recta y que será la conexión futura del polígono con la Autovía A68 y con la N232. También está en fase de redacción el nudo de acceso desde la N232 al Polígono y Placo, que si todo va según lo previsto podría llevarse a cabo el próximo año.
Las empresas locales disponen hasta el miércoles 19 para presentar ofertas. El plazo de ejecución será de un mes.
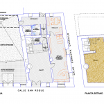
La "Casa del Cura" se somete a obras para abrirla al público
13 Nov 2025 a las 14:31
El Ayuntamiento de Quinto acaba de sacar a licitación los trabajos de restauración de la Casa del Cura (cuarta fase) que permitirán dar uso -parcial- a este inmueble después de tres décadas en abandono, ruina y consolidación.
La Casa del Cura, que es un edificio histórico calificado como Bien de Interés Catalogado, es un palacio del siglo XVI vinculado a la iglesia desde su construcción hasta que en la década del 2000 pasó a ser propiedad del Ayuntamiento.
Se inició su demolición en 1997 que fue paralizada ese mismo año. Durante más dos décadas estuvo sin cubierta en la más absoluta ruina y el Ayuntamiento impulsó en 2018 su consolidación y restauración. Dedicándose para ello tres fases de trabajos con una valoración aproximada a los 400.000€.
Ahora, con apoyo de la Diputación de Zaragoza, se acometen los trabajos de la fase nº4 con un presupuesto de 140.000€ de los cuales la institución provincial aporta 60.000€ y el resto, el Ayuntamiento de Quinto. Los trabajos podrán comenzar pasadas las fechas Navideñas y está previsto que finalicen antes del verano de 2026.
Las empresas interesadas pueden presentar sus ofertas desde el 13 de noviembre hasta el 3 de diciembre. Toda la info está en la web de Contratación del Estado. https://contrataciondelestado.es/wps/poc?uri=deeplink:detalle_licitacion&idEvl=Wiu6hOQ2Q8%2F10HRJw8TEnQ%3D%3D
Sobre el alcance de los trabajos.
La actuación se centrará en la planta baja, donde se va a levantar los suelos actuales, se va a proceder a desescombrar la bodega y dejarla utilizable, se va a reponer los suelos de la parte cubierta, adecuación de aseos, mejora de la accesibilidad, instalación eléctrica, puerta de acceso, limpieza de la parte descubierta y construcción de solera en esa misma zona.
Con ello, se podrá usar el espacio al aire libre y la zona cubierta como oficina, despacho, espacio expositivo y como oficina de turismo comarcal.
"La Comarca está desarrollando un Plan de Turismo con diferentes vías de actuación. Una de ellas es la puesta en marcha de una oficina de turismo. El lugar elegido es Quinto y la Casa del Cura como sede. La Comarca invertirá 30.000€ para el equipamiento de la instalación" explica el alcalde, Jesús Morales. "Tener una oficina de turismo va a permitir mejorar la experiencia de los visitantes, promover nuevas acciones y visitas a la comarca, poner en valor nuestros pueblos y sus recursos y dinamizar la economía", argumenta el alcalde.
Quinto mejora la recogida de residuos con la puesta en marcha del Punto Limpio
24 Oct 2025 a las 12:50
El próximo 3 de noviembre, Quinto abrirá al público el Punto Limpio. Y lo hará con un servicio mucho más acorde a los tiempos y necesidades actuales.
Hasta la fecha, el Ayuntamiento disponía de un contenedor de gran dimensión donde los vecinos podían verter materiales voluminosos para que mensualmente, la empresa contratada por la Comarca para la recogida de residuos lo trasladara a la planta de tratamiento.
Con las obras realizadas, el Ayuntamiento da un paso firme en la correcta gestión de los residuos y desde noviembre se propone a realizar de una forma mucho más efectiva la recogida de residuos no peligrosos. Meses después, se activará una segunda fase donde se recogerán otros tipos de residuos calificados como peligrosos, una vez que se obtenga la licencia medioambiental para ese fin.
Para que este espacio pueda ser una realidad, el Ayuntamiento ha invertido aproximadamente 150.000€ entre obras, proyecto y tramitaciones ambientales para poder hacer frente a este reto y mejorar las condiciones de la gestión de los residuos que generamos en nuestros hogares. La Diputación de Zaragoza ha apostado por el proyecto y ha concedido dos subvenciones por importe de aproximadamente 140.000€
En esta primera etapa, los usuarios del punto limpio encontrarán una serie de mejoras que, con la colaboración de todos, conseguirán que el tratamiento de los residuos sea más efectiva y evitemos el vertido descontrolado.
Se podrá depositar en el Punto Limpio:
Contenedor de poda. Restos de poda lo más troceado posible.
Contenedor de RCA (Residuos de Construcción y Demolición). Escombro inerte separado.
Contenedor de Maderas (muebles de madera, palets, tablas, todo lo que pueda ser madera procesada.
Contenedor de hierro y chatarra. Todo lo que sea metálico.
Contenedor de voluminosos (todo el resto que podamos recoger, irá a este sobrante: colchones, pequeños electrodomésticos, muebles no madera, resto de voluminosos).
Materiales que NO se van a poder recoger en fase A:
Neveras, congeladores, ruedas, pilas, baterías, pinturas, aceites, fluorescentes, toner, cartuchos, tintas, placas fotovoltaicas…
Para un correcto funcionamiento, el Punto Limpio estará gestionado por un trabajador municipal y con un horario de apertura:
Martes, de 12h a 14h.
Jueves, de 15h a 17h. (de septiembre a junio).
Sábados, de 10h a 12h.
Usuarios y normas…
Queda abierto el servicio a cualquier ciudadano con residuo doméstico o de origen doméstico/urbano.
No puede depositarse ningún tipo de residuo peligroso.
El acceso se hace en vehículo en la parte superior elevada y, una vez ahí, por las plataformas metálicas hasta el contenedor que el personal le indique.
El depósito se realizará de la forma más ordenada y separada posible.
El residuo del contenedor de RCD, se verterá desde sacas o sacos, no de forma suelta desde cualquier elemento como carretillo, remolque… debiendo ser material inerte. Previa presentación de licencia de obras municipal del Ayuntamiento de Quinto.
Descárgate aquí el folleto informativo. Folleto Punto Limpio V2
A licitación las obras de renovación de Camino de la Estación
30 Sep 2025 a las 23:32
El Ayuntamiento de Quinto acaba de sacar a licitación la ejecución de las obras de renovación del primer tramo de Camino de la Estación, desde la carretera hasta la harinera.
El proyecto, redactado en 2023/2024, por el arquitecto Fco. García Miranda, asciende a 395.000€ y contempla una actuación integral en la zona. Se cambian desagües, tuberías de abastecimiento de agua, aceras, alcorques, arbolado, se instala nuevo alumbrado en los dos laterales de la calle, se ordenan los aparcamientos y se mejoran los entronques con calle Jardiel Poncela y hasta la puerta de la fábrica de harinas.
Esta actuación estaba encuadrada en la posible financiación extraordinaria provocada por la construcción de dos parques fotovoltaicos y eólicos previsto inicialmente en 2024, pero debido a que esos proyectos tienen un plazo más largo, esa financiación no se ha producido debiendo, el Ayuntamiento, redirigir el proyecto para lo cual, se metió la obra dentro del Plan PLUS 2025 de la Diputación de Zaragoza, que aportará unos 240.000€ tras la aprobación de la subvención en los últimos días.
"La actuación de Camino de la Estación es una obra que se hace con multiples objetivos: renovar el saneamiento que no funciona y revoca en varias rejillas, renovar el abastecimiento que ha sufrido muchas averías, reorganizar los espacios de peatones y vehículos, mejorar la iluminación... en definitiva, se trata de transformar esta vía -hoy en un estado de avanzado deterioro- en una calle del siglo XXI. No hay otra calle en Quinto con estas dimensiones y tráfico que esté en peores condiciones", explica el alcalde, Jesús Morales.
El plazo para presentar las ofertas finaliza el 20 de octubre. Teniendo la intención desde el consistorio que toda la tramitación pueda estar terminada antes de finalizar el año 2025.
Toda la info para licitadores en la página de Contratación del Estado.
Si quieres ver el proyecto completo puedes pinchar aquí.
El Circo vuelve a Quinto este fin de semana
23 Sep 2025 a las 7:56
Artistas aragoneses, nacionales e internacionales ofrecerán diferentes espectáculos gratuitos para todos los públicos entre los que destaca una gala internacional de circo
Quinto acogerá este último fin de semana de septiembre la tercera edición del festival “Circo se escribe sin H”, que toma su nombre en referencia al reconocido autor Enrique Jardiel Poncela y su obra “Amor se escribe sin hache” y que ha sido presentado esta mañana en la sala de prensa de la Diputación de Zaragoza. Artistas aragoneses, nacionales e internacionales se darán cita en las calles y plazas del municipio para ofrecer diferentes espectáculos entre los que se incluye una gala internacional de circo. Los espectáculos son gratuitos y para todos los públicos.
Además, se incluye un taller de circo para que pequeños y mayores se puedan iniciar en las disciplinas circenses. Desde la organización del festival se ha buscado el equilibrio en las distintas disciplinas de circo de la programación, de manera que se podrá disfrutar de las acrobacias aéreas o los malabares de luz pasando por el clown, el trapecio, el mano a mano o la bicicleta acrobática.
“El festival ofrece una programación diversa, gratuita y pensada para todo tipo de públicos”, ha destacado la diputada delegada de Cultura de la Diputación de Zaragoza, Charo Lázaro, quien ha resaltado la labor del Ayuntamiento de Quinto con la organización de este evento, incidiendo en que “se trata de una alternativa de ocio estupenda para disfrutar de la cultura al aire libre”.
Por su parte, el concejal de Cultura del Ayuntamiento de Quinto, Jesús Porroche, ha explicado que el festival surgió tras detectar tras la pandemia un cambio en la reacción de los vecinos ante la programación cultural de la localidad y por ello nos planteamos la organización de proyectos más grandes de los que pudiésemos disfrutar en todos los espacios de la localidad”. “Con este festival hemos conseguido involucrar a todo el pueblo con actuaciones espectaculares, de una calidad nunca antes vista en Quinto”, ha resaltado Porroche.
Tal y como ha explicado el coordinador del festival, Eduardo Lostal, se ha buscado el equilibrio también en el tipo de propuestas, desde algunas más familiares y cómicas hasta otras más poéticas, y el equilibrio en el género, acercándose a la paridad de los artistas en escena.
En este festival tendrán espacio las propuestas aragonesas, las estatales e internacionales con compañías que recorren buena parte de la península (Andalucía, Galicia o Castilla y León) y artistas venidos de Italia o Argentina.
El festival se desarrollará el viernes 26 y el sábado 27 de septiembre recorriendo diferentes espacios del municipio. De forma previa, el miércoles 24 los alumnos del colegio podrán disfrutar del artista Edu Manazas en varias funciones escolares. El viernes 26 comenzarán los espectáculos abiertos con Rube de la compañía Alodeyá, una de las compañías aragonesas de referencia y un buen exponente del circo actual: investigación en la técnica malabar buscando un lenguaje propio. Un espectáculo muy divertido que habla sobre ciencia a través de la comicidad y un nivel técnico espectacular.
El sábado 27 por la mañana visitará Quinto la compañía gallega Sempre Arriba con su espectáculo Hoy sí. Una payasa muy divertida que vendrá a montar una fiesta ochentera para disfrutar del ahora y que, de paso, asombrará con sus acrobacias aéreas a varios metros de altura.
La tarde la abrirá el artista burgalés Jean Philippe Kikolas con su espectáculo Sin Remite con el que ha visitado multitud de países en sus cientos de funciones. Un cartero entrañable que en su aparente torpeza esconde un habilidoso artista de circo con los malabares y equilibrios que dejará al público con la sonrisa en la boca.
Como colofón del festival, tendrá lugar la Gran Gala Internacional, nuevas propuestas vestidas con el sabor del nuevo circo: malabaristas, equilibristas, acróbatas y aeristas, en una gala variada y equilibrada en cuánto a género, disciplinas y origen de las propuestas. Comenzará con la actuación de Nicolò Bussi, malabarista italiano formado en la prestigiosa escuela de circo de París CNAC con una técnica deslumbrante con los malabares mezclada con pinceladas de acrobacia.
Tras él, se podrá disfrutar de la actuación de Darío Dumont, quién venido desde Andalucía, sacará unas buenas risas al público mientras les deja boquiabierto con sus trucos sobre la bicicleta acrobática. Le seguirá DanyZoo, con su delicado número de parada de manos haciendo figuras que parecen imposibles. Con este espectáculo actúo hace unos años en el Festival Cirque du Demain de Paris, uno de los festivales de circo de referencia a nivel mundial. Continuará con la artista aragonesa Cristina Díez y su bonito número de trapecio fijo. Serán el dúo italoargentino Zenzero e Canella los encargados de poner el broche final a la gala con su espectacular número de mano a mano. La conducción de la gala correrá a cargo de la actriz aragonesa Minerva Arbués, una de las cómicas aragonesas más divertidas.
Completa la programación del fin de semana un taller de circo en familia el sábado por la mañana. Todas las actividades son gratuitas y tienen planteados espacios alternativos cubiertos en caso de inclemencias meteorológicas. El acceso a los espectáculos estará libre de barreras arquitectónicas siendo accesible a personas con movilidad reducida. Se reservarán espacios para estas personas, a quiénes se solicita que lleguen con cierta antelación para rellenar dichos espacios.
El festival está organizado por el Ayuntamiento de Quinto, con la producción de Serendipia Producciones y el apoyo del Gobierno de Aragón a través de su programa Aragón, Tierra de Cultura.
[audio mp3="https://www.quinto.es/wp-content/uploads/2025/09/LAZARO-CIRCO-QUINTO.mp3"][/audio]
[audio mp3="https://www.quinto.es/wp-content/uploads/2025/09/LOSTAL-CIRCO-QUINTO.mp3"][/audio]
[audio mp3="https://www.quinto.es/wp-content/uploads/2025/09/PORROCHE-CIRCO-QUINTO.mp3"][/audio]
Programa resumido
Miércoles 24 de Septiembre
En horario de mañana: Espectáculos escolares en Quinto en Colegio Público Fernando El Católico
Viernes 26 de Septiembre
20h: Inauguración del festival y Alodeyá con Rube en Plaza Vieja
Sábado 27 de Septiembre
10h – 11:30h: Taller de circo en familia en La Codera
12h: Sempre Arriba con Hoy Sí en Plaza de la Comarca
19h: Kikolas con Sin Remite en Plaza de la Comarca
20:30h: Gran Gala Internacional de Circo delante del Museo / El Piquete
En caso de lluvia las actividades previstas al aire libre se trasladarán a espacios cubiertos.

Ecomputer S.L.